BENEKOV C107 EXCLUSIVE automatický kotel 98 kW na pelety a hnědé uhlí, levý
Kód: 116200001


Detailní popis produktu
Přednosti kotle
- automatický provoz kotle
- mechanický přísun paliva z vestavěného zásobníku do spalovací komory
- jednoduchá, časově nenáročná obsluha a údržba
- nízké provozní náklady
- modulace tepelného výkonu v celém výkonovém rozsahu
- nízká emisní zátěž pro okolí
- 3-tahová konstrukce kotlového tělesa zaručující vysokou účinnost
- kotel včetně kotlového tělesa lze rozložit na několik menších celků, což zjednodušuje jeho dopravu do kotelny a montáž
- moderní design
- řídící jednotka Siemens Climatix s ekvitermní regulací, možností řízení 2 topných okruhů a s možností napojení na vzdálený přístup přes internet.
Provoz kotle
Kotel je třeba obsluhovat v průměru 10 minut denně. Zásobník paliva umožňuje bezobslužný provoz obvykle po dobu 5 až 7 dní.
Popel je nutno vynášet jednou za 4 až 7 dní . Intenzita vynášení popele je závislá na kvalitě používaného paliva a seřízení kotle.
Stejně jako u dalších našich výrobků, bezpečný provoz kotle zajišťuje havarijní termostat, sloužící k ochraně otopného systému proti přehřátí. Motor šnekového podávacího zařízen je proti přetížení vybaven termo-pojistkou. Tavná tepelná pojistka zabezpečuje kotel proti prohoření paliva do zásobníku paliva při výpadku elektrického proudu na delší dobu.
Kotel lze řídit pomocí pokojového termostatu EcoSTER BN. V případě zájmu lze dodat tento pokojový termostat ve verzi s dotykovým displejem (EcoSTER BN TOUCH).
Na přání lze ke kotli zakoupit modul pro odvládání kotle přes Internet (ecoNET BN).
Zapojení kotle
Pro úsporný provoz kotle a optimální využití funkcí řídící jednotky je kotel nutno instalovat podle schéma číslo 16 uvedené v Technickém podkladu k instalacím kotlů Benekov. Pokud není kotel instalován podle uvedeného schématu, nelze uznat záruku.
Pro uznání záruky musí být kotel zakoupen u autorizovaného prodejce, nainstalován firmou s platným certifikátem montážní firmy a uveden do provozu firmou s platným certifikátem servisní firmy.




Doplňkové parametry
| Kategorie: | Kombinované automatické kotle |
|---|---|
| Záruka: | 2 roky |
| Hmotnost: | 1470 kg |
| Hmotnost: | 1470 kg |
| Obsah vodního prostoru: | 370 l |
| Průměr kouřovodu: | 250 mm |
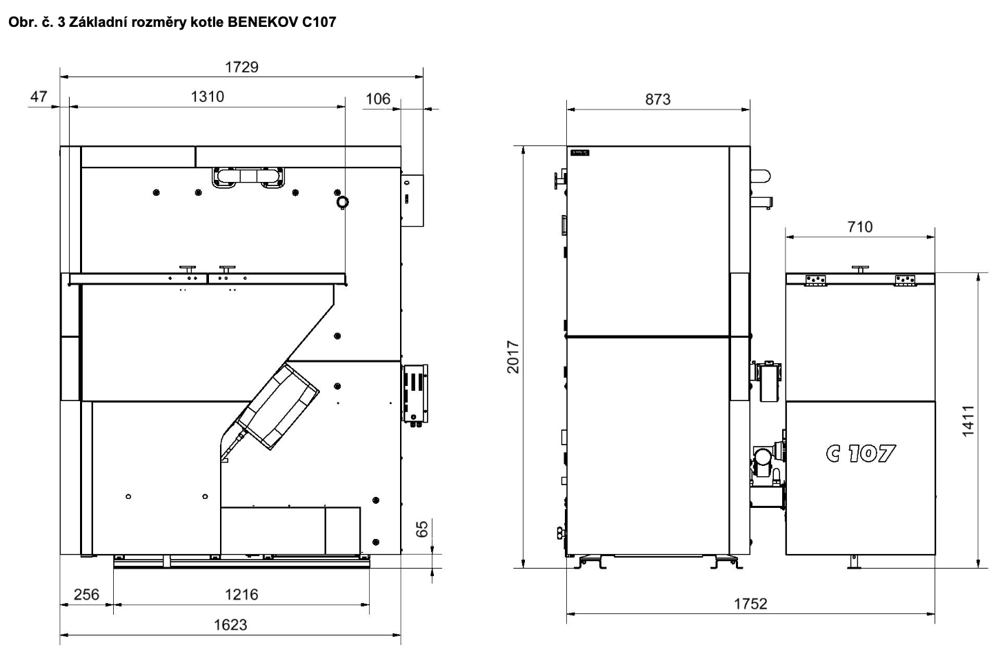
| Rozměry kotle š x h x v: | 1752x1729x2017 mm |
| Třída kotle: | 4 |
| Pracovní přetlak vody: | 2 bar |
| Doporučená provozní teplota: | 65 - 80 °C |
| Připojení kotle: | G1" |
| Max. elektrický příkon: | 90 W |
| Připojovací napětí: | 230 V/ 50 Hz |
| Elektrické krytí: | IP20 |
| Kapacita zásobníku paliva: | 500 l |
| Jmenovitý výkon: | 98 kW |
Hodnocení produktu
Buďte první, kdo napíše příspěvek k této položce.
Pouze registrovaní uživatelé mohou vkládat hodnocení. Prosím přihlaste se nebo se registrujte.
Diskuze
Buďte první, kdo napíše příspěvek k této položce.

Firma se nachází na okraji města Horní Benešov, které má dobré spojení s Bruntálem, Krnovem, Opavou či Ostravou.
V současnosti již patří BENEKOV mezi významné evropské firmy zabývající se problematikou spalování uhlí a biomasy.
Ve druhé polovině devadesátých let jsme na trh přišli s vlastními finálními výrobky, zplyňovacími kotli na kusové dřevo a automatickými kotli na uhlí .
Po získání zkušeností se spalováním uhlí jsme vyvinuli v roce 2002 kotel na biomasu, BENEKOV pelling 27. Ten je určen pro efektivní, spolehlivé a pohodlné spalování dřevních pelet a obilí.
Abychom uspěli v západoevropské konkurenci, tak jsme v roce 2006 vyvinuli ve spolupráci s našimi dánskými a irskými obchodními partnery novou řadu kotlů využívající pro svůj chod řídící jednotku s lambda sondou. Tato nová řada R byla certifikována pro spalování dřevních pelet a zrna.
Vzhledem k dlouhodobé poptávce po spalování dřevní štěpky jsme na konci roku 2008 uvedli na trh novou řadu kotlů BENEKOV S, které jsou určeny pro spalování dřevní štěpky, hoblin, odřezků apod.
České kotle firmy BENEKOV jsou využívány ve více než 30-ti zemích světa. Vývozní teritoria sahají od Velké Británie, přes Rusko, až do Austrálie. Kotle jsou využívány pro vytápění rodinných domů, škol, firem a jiných podobných objektů.
Od roku 2018 jsme se začali intenzivně zabývat oborem fotovoltaiky a zejména bateriových úložišť. První vlastní bateriové úložiště jsme uvedli na trh v roce 2020.
V roce 2021 jsme se stali první českou firmou, která vyvinula a uvedla na trh hybridní peletové kotle.
Velkou část našich investic tvoří vývoj. Již od roku 1998 spolupracujeme s významnými výzkumnými centry a univerzitami v celé Evropě.
Největší důraz klademe na flexibilitu a přizpůsobování produktů zákazníkům, vývoj nových technologií a špičkový servis jak pro distributory, tak pro konečné zákazníky.
| Výrobní společnost : | Benekov s.r.o. |
|---|

