BENEKOV C37 PREMIUM kotel na pelety/uhlí 35kW, automatický, levý
Kód: 114600502


Detailní popis produktu
- Teplovodní kotel BENEKOV C37 je určen pro vytápění velkých rodinných domků, menších obchodů, rekreačních zařízení, kancelářských budov a jiných objektů, jejichž náročnost na tepelný výkon nepřesahuje 35 kW.
- Ideální model pro koncept ENERGETICKY ÚSPORNÉ KOTELNY BENEKOV.
- Velmi nízká emisní zátěž pro okolí odpovídající 4. třídě dle ČSN EN 303-5:2013
- Splňuje parametry Ekodesignu.
- V základní výbavě je tento automatický kotel na tuhá paliva vybaven řídící jednotkou s modulací výkonu a ekvitermní regulací. Ty šetří až 15 % nákladů na palivo, zejména v přechodovém období jaro a podzim.
- Certifikovanými palivy jsou hnědé uhlí ořech 2 a dřevní pelety. U obou paliv automatický kotel díky modulace výkonu dosahuje vynikající účinnost nad 90 % v celém rozsahu výkonu.
- 3 - tahová konstrukce vertikálního výměníku zaručuje vysokou účinnost a těleso stačí čistit jednou za 4 až 6 týdnů.
- Ve verzi PREMIUM základní výbava neobsahuje designové dveře kotlového tělesa. Verze EXCLUSIVE obsahuje designové krycí dveře kotlového tělesa a zároveň umožňuje vzdálený přístup ke kotli přes Internet
- Řídící jednotka umožňuje ovládání 2 topných okruhů
- K automatickým kotlům této řady lze na přání dokoupit širokou škálu přídavných zařízení jako jsou: odpopelňovač, automatické čištění výměníku, záložní zdroje, komínovou klapku atd.
- Pro kvalitní řešení celé otopné soustavy doporučujeme při instalaci využít doporučené hydraulické komponenty, které jsou uvedeny v seznamu Technické podklady k instalacím kotlů Benekov.
- Pokud je instalace provedena dle dokumentu Technické podklady i k instalacím kotlů Benekov a jsou využity hydraulické komponenty definované výrobcem, je poskytnuta prodloužená záruka 5 let na kotlové těleso.
- Největší záruku spolehlivosti použitých armatur při instalaci přináší využití Paketů armatur přímo od výrobce.
- K provozu kotle doporučuje výrobce používat značkové palivo Ridepal od firmy Ridera, které je dostupné v celé ČR. Při spalování dřevních pelet doporučuje výrobce využívat dřevní pelety sítě BIOMAC, rovněž dostupné v celé ČR.
Kotel je třeba obsluhovat v průměru 10 minut denně. Zásobník paliva umožňuje bezobslužný provoz obvykle po dobu 3 až 7 dní.
Popel je nutno vynášet jednou za 3 až 7 dní v případě spalování uhlí a jednou za cca 3 až 5 týdnů v případě spalování dřevních pelet. Intenzita vynášení popele je závislá na kvalitě používaného paliva a seřízení kotle.
Stejně jako u dalších našich výrobků, bezpečný provoz kotle zajišťuje havarijní termostat, sloužící k ochraně otopného systému proti přehřátí. Motor šnekového podávacího zařízen je proti přetížení vybaven termo-pojistkou. Tavná tepelná pojistka zabezpečuje kotel proti prohoření paliva do zásobníku paliva při výpadku elektrického proudu na delší dobu.





Doplňkové parametry
| Kategorie: | Kombinované automatické kotle |
|---|---|
| Záruka: | 2 roky |
| Hmotnost: | 520 kg |
| Hmotnost: | 520 kg |
| Obsah vodního prostoru: | 134 l |
| Průměr kouřovodu: | 145 mm |
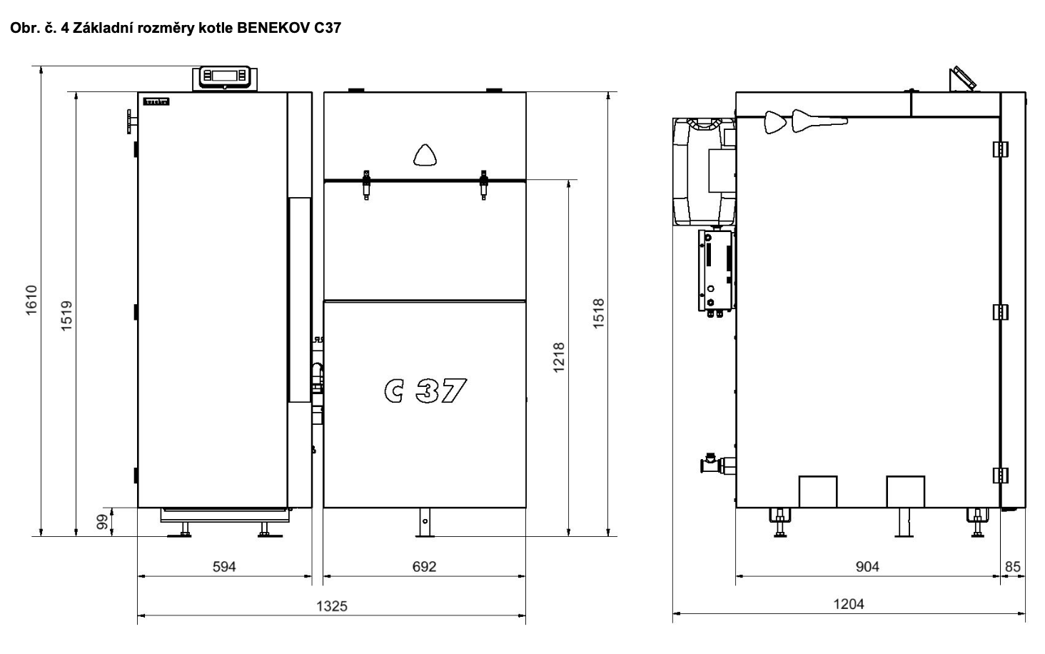
| Rozměry kotle š x h x v: | 1325x1204x1610 mm |
| Třída kotle uhlí: | 4 |
| Pracovní přetlak vody: | 2 bar |
| Doporučená provozní teplota: | 65 - 80 °C |
| Připojení kotle: | G1" |
| Max. elektrický příkon: | 135 W |
| Připojovací napětí: | 230 V/ 50 Hz |
| Elektrické krytí: | IP20 |
| Kapacita zásobníku paliva: | 440 l |
| Jmenovitý výkon: | 35 kW |
| Průměrná spotřeba paliva: | 2-6,96 kg/hod |
| Účinnost: | 94 % |
Hodnocení produktu
Buďte první, kdo napíše příspěvek k této položce.
Pouze registrovaní uživatelé mohou vkládat hodnocení. Prosím přihlaste se nebo se registrujte.
Diskuze
Buďte první, kdo napíše příspěvek k této položce.

Firma se nachází na okraji města Horní Benešov, které má dobré spojení s Bruntálem, Krnovem, Opavou či Ostravou.
V současnosti již patří BENEKOV mezi významné evropské firmy zabývající se problematikou spalování uhlí a biomasy.
Ve druhé polovině devadesátých let jsme na trh přišli s vlastními finálními výrobky, zplyňovacími kotli na kusové dřevo a automatickými kotli na uhlí .
Po získání zkušeností se spalováním uhlí jsme vyvinuli v roce 2002 kotel na biomasu, BENEKOV pelling 27. Ten je určen pro efektivní, spolehlivé a pohodlné spalování dřevních pelet a obilí.
Abychom uspěli v západoevropské konkurenci, tak jsme v roce 2006 vyvinuli ve spolupráci s našimi dánskými a irskými obchodními partnery novou řadu kotlů využívající pro svůj chod řídící jednotku s lambda sondou. Tato nová řada R byla certifikována pro spalování dřevních pelet a zrna.
Vzhledem k dlouhodobé poptávce po spalování dřevní štěpky jsme na konci roku 2008 uvedli na trh novou řadu kotlů BENEKOV S, které jsou určeny pro spalování dřevní štěpky, hoblin, odřezků apod.
České kotle firmy BENEKOV jsou využívány ve více než 30-ti zemích světa. Vývozní teritoria sahají od Velké Británie, přes Rusko, až do Austrálie. Kotle jsou využívány pro vytápění rodinných domů, škol, firem a jiných podobných objektů.
Od roku 2018 jsme se začali intenzivně zabývat oborem fotovoltaiky a zejména bateriových úložišť. První vlastní bateriové úložiště jsme uvedli na trh v roce 2020.
V roce 2021 jsme se stali první českou firmou, která vyvinula a uvedla na trh hybridní peletové kotle.
Velkou část našich investic tvoří vývoj. Již od roku 1998 spolupracujeme s významnými výzkumnými centry a univerzitami v celé Evropě.
Největší důraz klademe na flexibilitu a přizpůsobování produktů zákazníkům, vývoj nových technologií a špičkový servis jak pro distributory, tak pro konečné zákazníky.
| Výrobní společnost : | Benekov s.r.o. |
|---|
