WOLF FGB-K-28 8614828A
Kód: 106078290507500016


Související produkty
Detailní popis produktu
TECHNICKÉ PARAMETRY:
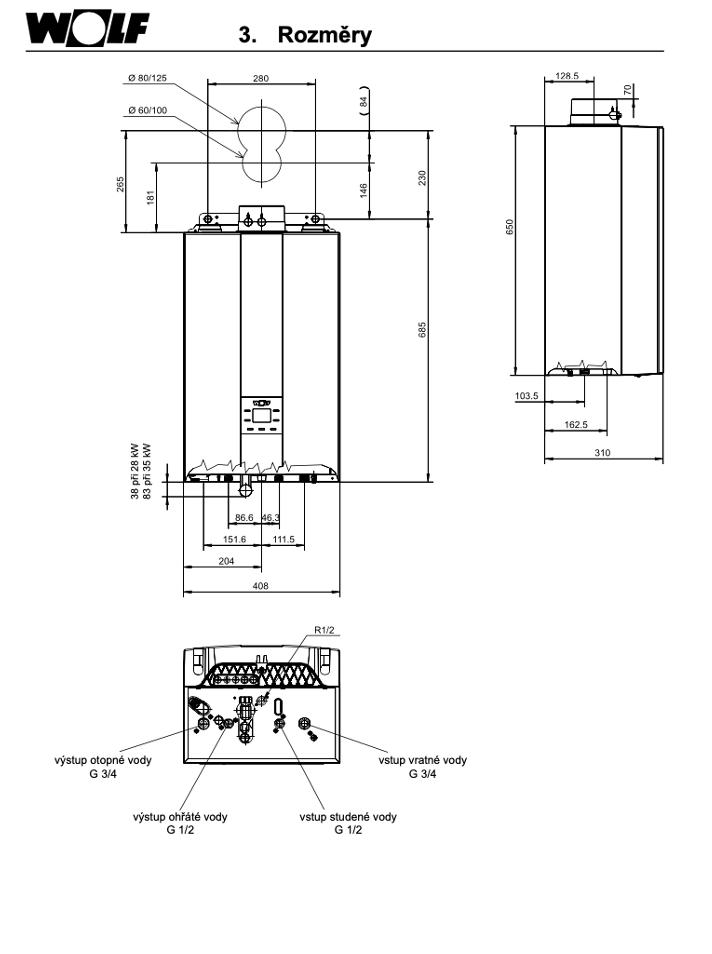
- Šířka: 408 mm
- Hloubka: 310 mm
- Výška: 650 mm
- Hmotnost: 30 kg
- Expanzní nádoba: 8 l
- Připojení - vzduch: 100 mm
- Připojení - spaliny: 60 mm
VÝKONOVÉ PARAMETRY:
- Jmenovitý tepelný výkon 80/60 °C: 24,1/27 kW
- Jmenovitý tepelný výkon 50/30 °C: 27 kW
- Jmenovitý tepelný příkon: 25/28 kW
- Nejnižší jmenovitý tepelný výkon (modulovaný) při 80/60 °C: 4,6 kW
- Nejnižší jmenovitý tepelný výkon (modulovaný) při 50/30 °C: 5,3 kW
- Účinnost [DIN] při 100 % výkonu (Hi): 98 %
- Teplota výstupu otopné vody nastavená z výroby: 75 °C
- Teplota otopné vody do cca.: 85 °C
- Max. dovolený tlak v otopném okruhu: 3 bar
- Třída NOx: 5
- Elektrické krytí: IPX4D
- Napájecí napětí: 230 V, 50 Hz
Bez venkovního čidla- vysoká účinnost- nízké provozní náklady- možnost ovládání přes smartphone (s ISM7e jako příslušenstvím)- stylový design- dostatek teplé vody- malé rozměry- jednoduché uživatelské rozhraní. Nástěnný kondenzační kotel FGB je k dispozici ve dvou výkonech (28 a 35 kW), v provedení jen pro vytápění s možností doplnění zásobníku pro přípravu teplé vody nebo jako kombinovaný kotel. Provoz je možný na zemní plyn nebo na LPG. Kotel FGB má vše, co má moderní nástěnný kondenzační kotel mít.

Vlastnosti kotle:
- Konstrukce spalovací komory zajišťuje velmi čisté spalování a velký regulační rozsah výkonu (až do 1 : 6).
- Zabudovaná ekvitermní regulace (snímač jako doplněk) je kompatibilní s regulačním systémem Wolf WRS.
- Regulace umožňuje spolupráci se solárními systémy a poskytuje možnost ovládání přes webový prohlížeč nebo aplikaci iOS/android.
- Online kontrola a monitorování pro uživatele a servisní techniky umožňuje přístup ke kotli odkudkoli a zajistí tak lepší služby, vyšší úspory a maximální komfort.
- Velký displej s jednoduchým a uživatelsky přívětivým rozhraním zobrazuje všechna důležitá data.
- Díky funkci rychlého startu a rychlému vyrovnání teploty zaručuje nový kotel FGB konstantní teplotu ohřáté vody od samého počátku, i při vyšších požadavcích na výkon.
- Nejnovější kondenzační technologie je zárukou vysoké účinnosti, zaujme nízkou spotřebou a nízkými emisemi.
Konstrukce kotle:
- Stylový vzhled a optimální rozměry umožňují montáž prakticky kdekoli.
- Komponenty zařízení – měděné trubky, mosazné tvarovky, výměník tepla z odolné slitiny hliníku s křemíkem, hydraulický blok vyztužený skelnými vlákny, výměník určený k ohřevu vody z ušlechtilé oceli – jsou vyráběny z kvalitních materiálů s dlouhou životností.
- Výměník tepla s vysokou tepelnou vodivostí je konstruován jako monoblokový odlitek s jednoduchými vodními kanály velkého průřezu.
- Díky použití EC ventilátoru a vysoce úsporného oběhového čerpadla dosahuje kotel energetické třídy „A“, a splňuje s velkou rezervou veškeré požadavky evropských směrnic ErP.
- Součástí standardní výbavy kotle je 3-cestný ventil, pojistný ventil, expanzní nádoba, odvzdušňovací ventil, sifon k odvodu kondenzátu a gravitační zpětná klapka spalinovodu.
- Montáž i údržbu lehce a rychle zvládne montážník díky provedení „Plug & Play“.

Doplňkové parametry
| Kategorie: | WOLF FGB |
|---|---|
| Záruka: | 2 roky |
| Hmotnost: | 35 kg |
| Šířka kotle (mm): | 408 |
| Výška kotle (mm): | 650 |
| Index krytí: | IP X4D |
| Průměr kouřovodu (mm): | 60/100 |
| Hloubka kotle (mm): | 310 |
| Použití kotle: | vytápění;TUV |
| Instalace kotle: | závěsný |
| Zásobník kotle: | integrovaný |
| Objem zásobníku kotle (l): | 0 |
| Energetická účinnost (%): | 98 |
| Energetická třída TUV kotle: | A |
| Energetická třída topení kotle: | A |
| Šířka zásobníku kotle (mm): | 0 |
| Hloubka zásobníku kotle (mm): | 0 |
| Výška zásobníku kotle (mm): | 0 |
| Hmotnost kotle (kg): | 30 |
| Výkon kotle (kW): | 27 |
| Typ kotle: | kondenzační |
| Výrobce: | Wolf |
Buďte první, kdo napíše příspěvek k této položce.
Buďte první, kdo napíše příspěvek k této položce.
01. O nás
Pomáháme vám naplnit vaši touhu po pohodlí a bezpečí.
Jako jeden z předních světových dodavatelů systémů pro vytápění a větrání nedodáváme jen plynové topné kotle, tepelná čerpadla, vzduchotechniku a větrací nebo solární systémy. Zabýváme se také globálními tématy současnosti a budoucnosti.
Středobodem naší práce jsou lidé, proto nás zajímá zejména komfortní a zdravé vnitřní prostředí v interiéru a maximální efektivnost, úspornost a udržitelnost našich produktů.
Konstruujeme inteligentní, účinné a ekologické systémy k přípravě teplé vody, vytápění, chlazení a větrání všech typů místností, kde pracují a žijí lidé. Systémy, které využívají nejnovější technologie a splňují požadavky na moderní design a estetiku s ohledem na trvalou udržitelnost.
02. Naše historie
Značka WOLF je na trhu již více než 50 let. Začalo to první sušičkou chmele v roce 1963 a pokračuje dodnes, kdy výrobky WOLF vytvářejí dokonalé vnitřní klima.

