WOLF FGB-24 plynový kotel 20,7kW, závěsný
Kód: 106078290507500021


Související produkty
Detailní popis produktu
TECHNICKÉ PARAMETRY:
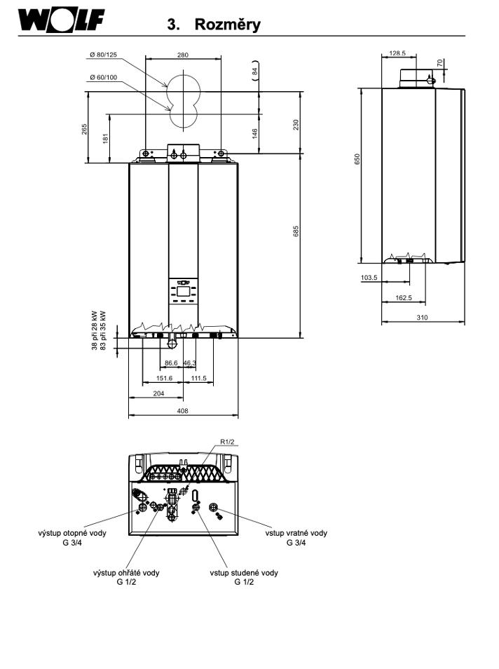
- Šířka: 408 mm
- Hloubka: 310 mm
- Výška: 720 mm
- Hmotnost: 34,5 kg
- Expanzní nádoba: 8 l
- Připojení - vzduch: 100 mm
- Připojení - spaliny: 60 mm
VÝKONOVÉ PARAMETRY:
- Jmenovitý tepelný výkon 80/60 °C: 19,4/23,31 kW
- Jmenovitý tepelný výkon 50/30 °C: 20,7 kW
- Nejnižší jmenovitý tepelný výkon (modulovaný) při 80/60 °C: 4,8 kW
- Nejnižší jmenovitý tepelný výkon (modulovaný) při 50/30 °C: 5,3 kW
- Účinnost [DIN] při 100 % výkonu (Hi): 110/99 %
- Teplota výstupu otopné vody nastavená z výroby: 75 °C
- Teplota otopné vody do cca.: 85 °C
- Max. dovolený tlak v otopném okruhu: 3 bar
- Třída NOx: 6
- Elektrické krytí: IPX4D
- Napájecí napětí: 230 V, 50 Hz

Moderní kondenzační technika šetří náklady na energii. - kotel lze provozovat také pomocí aplikace pro smartphone nebo přes portál SmartSet (s modulem rozhraní iSM7e na přání). - stylový vzhled dokonale zapadá do vašeho obytného prostoru.- stylový design - velmi malé kompaktní rozměry umožňují instalaci i ve velmi omezeném prostoru. - malé rozměry - Jednoduché a přehledné ovládání přímo na kotli umožňuje snadnou obsluhu - WOLF FGB je k dispozici rovněž jako kombinovaný kotel FGB-K s integrovaným ohřevem vody FGB nabízí nejmodernější kondenzační technologii pro efektivní vytápění pomocí kondenzačního tepla. Navíc můžete svůj kotel s regulačním systémem WOLF v kombinaci s naším modulem rozhraní ISM7e kdykoli ovládat smartphonem. Moderní kondenzační technika šetří náklady na energii.

Vlastnosti kotle:
- Konstrukce spalovací komory zajišťuje velmi čisté spalování a velký regulační rozsah výkonu (až do 1 : 6).
- Zabudovaná ekvitermní regulace (snímač jako doplněk) je kompatibilní s regulačním systémem Wolf WRS.
- Regulace umožňuje spolupráci se solárními systémy a poskytuje možnost ovládání přes webový prohlížeč nebo aplikaci iOS/android.
- Online kontrola a monitorování pro uživatele a servisní techniky umožňuje přístup ke kotli odkudkoli a zajistí tak lepší služby, vyšší úspory a maximální komfort.
- Velký displej s jednoduchým a uživatelsky přívětivým rozhraním zobrazuje všechna důležitá data.
- Díky funkci rychlého startu a rychlému vyrovnání teploty zaručuje nový kotel FGB konstantní teplotu ohřáté vody od samého počátku, i při vyšších požadavcích na výkon.
- Nejnovější kondenzační technologie je zárukou vysoké účinnosti, zaujme nízkou spotřebou a nízkými emisemi.
Konstrukce kotle:
- Stylový vzhled a optimální rozměry umožňují montáž prakticky kdekoli.
- Komponenty zařízení – měděné trubky, mosazné tvarovky, výměník tepla z odolné slitiny hliníku s křemíkem, hydraulický blok vyztužený skelnými vlákny, výměník určený k ohřevu vody z ušlechtilé oceli – jsou vyráběny z kvalitních materiálů s dlouhou životností.
- Výměník tepla s vysokou tepelnou vodivostí je konstruován jako monoblokový odlitek s jednoduchými vodními kanály velkého průřezu.
- Díky použití EC ventilátoru a vysoce úsporného oběhového čerpadla dosahuje kotel energetické třídy „A“, a splňuje s velkou rezervou veškeré požadavky evropských směrnic ErP.
- Součástí standardní výbavy kotle je 3-cestný ventil, pojistný ventil, expanzní nádoba, odvzdušňovací ventil, sifon k odvodu kondenzátu a gravitační zpětná klapka spalinovodu.
- Montáž i údržbu lehce a rychle zvládne montážník díky provedení „Plug & Play“.

Doplňkové parametry
| Kategorie: | WOLF FGB |
|---|---|
| Záruka: | 2 roky |
| Hmotnost: | 35 kg |
| Šířka kotle (mm): | 408 |
| Výška kotle (mm): | 720 |
| Index krytí: | IP X4D |
| Průměr kouřovodu (mm): | 60/100 |
| Hloubka kotle (mm): | 310 |
| Použití kotle: | vytápění |
| Instalace kotle: | závěsný |
| Zásobník kotle: | Ne |
| Energetická účinnost (%): | 110 |
| Energetická třída TUV kotle: | Ne |
| Energetická třída topení kotle: | A |
| Hmotnost kotle (kg): | 34.5 |
| Výkon kotle (kW): | 20.7 |
| Typ kotle: | kondenzační |
| Výrobce: | Wolf |
Hodnocení produktu
Buďte první, kdo napíše příspěvek k této položce.
Pouze registrovaní uživatelé mohou vkládat hodnocení. Prosím přihlaste se nebo se registrujte.
Diskuze
Buďte první, kdo napíše příspěvek k této položce.
01. O nás
Pomáháme vám naplnit vaši touhu po pohodlí a bezpečí.
Jako jeden z předních světových dodavatelů systémů pro vytápění a větrání nedodáváme jen plynové topné kotle, tepelná čerpadla, vzduchotechniku a větrací nebo solární systémy. Zabýváme se také globálními tématy současnosti a budoucnosti.
Středobodem naší práce jsou lidé, proto nás zajímá zejména komfortní a zdravé vnitřní prostředí v interiéru a maximální efektivnost, úspornost a udržitelnost našich produktů.
Konstruujeme inteligentní, účinné a ekologické systémy k přípravě teplé vody, vytápění, chlazení a větrání všech typů místností, kde pracují a žijí lidé. Systémy, které využívají nejnovější technologie a splňují požadavky na moderní design a estetiku s ohledem na trvalou udržitelnost.
02. Naše historie
Značka WOLF je na trhu již více než 50 let. Začalo to první sušičkou chmele v roce 1963 a pokračuje dodnes, kdy výrobky WOLF vytvářejí dokonalé vnitřní klima.

