BOSCH COMPRESS 7001i AW 7 ORM-S tepelné čerpadlo 10,73kW, vzduch-voda, venkovní+vnitřní jednotka se zásobníkem
Kód: 7738504713


Detailní popis produktu
Venkovní jednotka CS7000i AW 7 OR-S
- Šířka: 930 mm
- Hloubka: 583 mm
- Výška: 1380 mm
- Hmotnost: 107 kg
- Chladivo: R410A
- Množství chladiva: 1,75 kg
- Topný výkon A7/W35: 5,93 kW
- Chladící výkon A35/W7: 5,05 kW
- COP A-7/W35: 2,79
- Napájení: 230 V
- Krytí: IP X4
- Akustický výkon: 47 dB
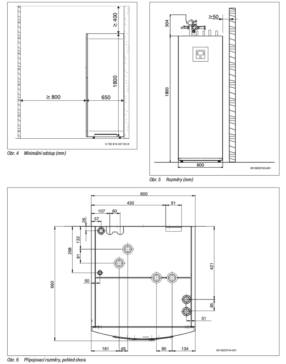
Vnitřní jednotka se zásobníkem COMPRESS 7000i AWM 9
-
Šířka: 600 mm
-
Hloubka: 650 mm
-
Výška: 1800 mm
-
Hmotnost: 145 kg
-
Objem: 190 l
-
El. pomocná tyč: 2/4/6/9 kW
-
Napájení: 400 V 3N
-
Jmenovitý průtok: 0,4 l/s
-
Krytí: IP X1
-
SVT kód: SVT24693
-
Součástí dodávky je ekvitermní regulace vč. čidla venkovní teploty a topný kabel odvodu kondenzátu.
-
Invertorové reverzibilní tepelné čerpadlo vzduch/voda kompaktního provedení s vnitřní stacionární hydraulickou jednotkou s integrovaným zásobníkem teplé vody o objemu 190 l a integrovaným regulátorem HPC 410.
-
Monoenergetické řešení – s integrovaným elektrickým dotopem: 2-9 kW a nerezovým zásobníkem na teplou vodu o objemu 190 l.
-
Teplota na výstupu do soustavy max. 62 °C.
-
Možnost vytápění i chlazení.
-
Použití při teplotě venkovního vzduchu - 20 až + 35 °C.
-
Vysoký topný faktor – COP > 3,7.
-
Integrovaný modul pro dálkové ovládání a sledování systému vytápění přes internet pomocí chytrých zařízení (iOS, Android).
-
Čelní kryt vnitřní jednotky vyrobeno z vysoce odolného skla.
-
Invertorová technologie – modulace výkonu ve 20 krocích dle aktuální potřeby.
-
Tepelné čerpadlo lze provozovat v tzv. nočním režimu pro dosažení ještě nižšího hluku.
-
Rychlá a jednoduchá instalace.
-
Hermeticky uzavřený chladivový okruh již z výrobního závodu – při instalaci není nutná účast chlaďaře.


Obecný popisek: Získejte spolehlivé a energeticky efektivní vytápění s tepelným čerpadlem BOSCH COMPRESS 7001i AW 7 ORM-S. S výkonem 10,73 kW a technologií vzduch-voda je ideální pro širokou škálu domů a budov. Venkovní a vnitřní jednotka s integrovaným zásobníkem teplé vody poskytuje kompletní řešení pro vytápění a ohřev vody.
Popisek k funkčnosti produktu: Tepelné čerpadlo BOSCH COMPRESS 7001i AW 7 ORM-S využívá energii z okolního vzduchu k účinnému vytápění a ohřevu teplé vody. Venkovní jednotka sbírá teplo z venkovního vzduchu a přenáší ho do vnitřního prostoru, kde je distribuován do topného systému a zásobníku teplé vody.
3 výhody produktu:
-
Vysoký výkon pro různé typy budov: S výkonem 10,73 kW je tepelné čerpadlo COMPRESS 7001i AW 7 ORM-S vhodné pro širokou škálu domů a budov, což zajišťuje dostatečný výkon pro účinné vytápění a ohřev vody.
-
Integrovaný zásobník teplé vody: Venkovní jednotka je vybavena integrovaným zásobníkem teplé vody, což snižuje potřebu dalšího zařízení a zjednodušuje instalaci.
-
Energetická úspornost: Tepelné čerpadlo využívá obnovitelnou energii z okolního vzduchu, což snižuje emise CO2 a přispívá k ochraně životního prostředí, zatímco snižuje náklady na energii.



Doplňkové parametry
| Kategorie: | Tepelná čerpadla BOSCH |
|---|---|
| Záruka: | 2 roky |
| Hmotnost: | 250 kg |
| Výkon TČ A7/W35 (kW): | 5.93 |
| Hmotnost TČ (kg): | 107 |
| Model TČ: | COMPRESS 7001i AW 7 ORM-S |
| Integrovaný zásobník TV: | ano |
| Akustický výkon venkovní jednotky (dB): | 47 |
| Typ chladiva: | R140A |
| Šířka vnitřní jednotky (mm): | 600 |
| Hloubka vnitřní jednotky (mm): | 650 |
| Výška vnitřní jednotky (mm): | 1800 |
| Šířka venkovní jednotky (mm): | 930 |
| Hloubka venkovní jednotky (mm): | 583 |
| Výška venkovní jednotky (mm): | 1380 |
| Provedení TČ: | MONOBLOK |
| Typ TČ: | vzduch-voda monoblok |
| Výrobce: | Bosch |
Hodnocení produktu
Buďte první, kdo napíše příspěvek k této položce.
Pouze registrovaní uživatelé mohou vkládat hodnocení. Prosím přihlaste se nebo se registrujte.
Diskuze
Buďte první, kdo napíše příspěvek k této položce.
V roce 1995 divize Junkers změnila svůj oficiální název na Bosch Termotechnika.
Součást skupiny Bosch
Produkty společnosti Bosch Termotechnika naleznete v současné době po celém světě zastoupené prostřednictvím 7 značek. Především díky prodeji výrobků jako jsou plynové závěsné kotle, kondenzační kotle, solární systémy a tepelná čerpadla jsme lídrem v oblasti vytápění a ohřevu teplé vody.
![]()
