BOSCH COMPRESS 7000i AW 17 ORM-T tepelné čerpadlo 5,63kW, 400V, vzduch-voda, venkovní+vnitřní jednotka se zásobníkem
Kód: 7738504602


Detailní popis produktu
Obsahuje:
- Venkovní jednotka CS7000i AW 17 OR-T
- Vnitřní jednotka se zásobníkem COMPRESS 7000i AWM17
Technické parametry venkovní jednotky:
- Šířka: 1122 mm
- Hloubka: 656 mm
- Výška: 1695 mm
- Hmotnost: 193 kg
- Chladivo: R410A
- Množství chladiva: 4 kg
- Topný výkon A7/W35: 5,63 kW
- COP: 4,87
- Topný výkon A-7/W35: 13,02 kW
- Chladící výkon A35/W7: 9,69 kW
- COP A-7/W35: 2,55
- Napájení: 230 V
- Krytí: IP X4
- Akustický výkon: 53 dB
Technické parametry vnitřní jednotky:
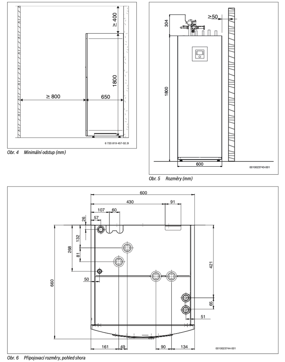
- Šířka: 600 mm
- Hloubka: 650 mm
- Výška: 1800 mm
- Hmotnost: 145 kg
- Objem: 190 l
- El. pomocná tyč: 3/6/9/12/15 kW
- Napájení: 400 V 3N
- Jmenovitý průtok: 0,59 l/s
- Krytí: IP X1
Další informace:
- SVT kód: SVT24263
- Součástí dodávky je ekvitermní regulace vč. čidla venkovní teploty a topný kabel odvodu kondenzátu.
- Invertorové reverzibilní tepelné čerpadlo vzduch/voda kompaktního provedení s vnitřní stacionární hydraulickou jednotkou s integrovaným zásobníkem teplé vody o objemu 190 l a integrovaným regulátorem HPC 410.
- Monoenergetické řešení s integrovaným elektrickým dotopem: 2-9 kW a nerezovým zásobníkem na teplou vodu o objemu 190 l.
- Teplota na výstupu do soustavy max. 62 °C.
- Možnost vytápění i chlazení.
- Použití při teplotě venkovního vzduchu - 20 až + 35 °C.
- Vysoký topný faktor – COP > 3,7.
- Integrovaný modul pro dálkové ovládání a sledování systému vytápění přes internet pomocí chytrých zařízení (iOS, Android).
- Čelní kryt vnitřní jednotky vyrobeno z vysoce odolného skla.
- Invertorová technologie umožňuje modulaci výkonu ve 20 krocích dle aktuální potřeby.
- Tepelné čerpadlo lze provozovat v tzv. nočním režimu pro dosažení ještě nižšího hluku.
- Rychlá a jednoduchá instalace.
- Hermeticky uzavřený chladivový okruh již z výrobního závodu – při instalaci není nutná účast chlaďaře.


Obecný popisek: Otevřete dveře moderního a energeticky efektivního vytápění s tepelným čerpadlem BOSCH COMPRESS 7000i AW 17 ORM-T. S výkonem 5,63 kW a technologií vzduch-voda je toto tepelné čerpadlo vhodné pro středně velké až velké domácnosti. Venkovní a vnitřní jednotka spolu s integrovaným zásobníkem teplé vody nabízí efektivní vytápění a ohřev vody při minimalizaci provozních nákladů.
Popisek k funkčnosti produktu: Tepelné čerpadlo BOSCH COMPRESS 7000i AW 17 ORM-T využívá technologii vzduch-voda pro efektivní vytápění domu. Venkovní jednotka nasává teplo z okolního vzduchu a přenáší ho do vnitřní jednotky, která distribuuje teplo po celém interiéru. Integrovaný zásobník teplé vody zajišťuje neustálý přísun teplé vody pro různé účely v domácnosti.
3 výhody produktu:
-
Ideální pro středně velké až velké domácnosti: S výkonem 5,63 kW je tepelné čerpadlo COMPRESS 7000i AW 17 ORM-T vhodné pro středně velké až velké domácnosti, poskytující dostatečný výkon pro efektivní vytápění.
-
Integrovaný zásobník teplé vody: Venkovní a vnitřní jednotka jsou vybaveny integrovaným zásobníkem teplé vody, což poskytuje pohodlí a nepřetržitý přísun teplé vody pro různé účely v domácnosti.
-
Minimální provozní náklady: Díky efektivnímu využívání energie a moderním technologiím pomáhá tepelné čerpadlo COMPRESS 7000i AW 17 ORM-T snižovat provozní náklady a přispívá k udržitelnějšímu provozu domácnosti.



Doplňkové parametry
| Kategorie: | Tepelná čerpadla BOSCH |
|---|---|
| Záruka: | 2 roky |
| Hmotnost: | 330 kg |
| Výkon TČ A7/W35 (kW): | 5.63 |
| Hmotnost TČ (kg): | 193 |
| Model TČ: | COMPRESS 7000i AW 17 ORM |
| Integrovaný zásobník TV: | ano |
| Akustický výkon venkovní jednotky (dB): | 53 |
| Typ chladiva: | R140A |
| Šířka vnitřní jednotky (mm): | 600 |
| Hloubka vnitřní jednotky (mm): | 650 |
| Výška vnitřní jednotky (mm): | 1800 |
| Šířka venkovní jednotky (mm): | 1122 |
| Hloubka venkovní jednotky (mm): | 656 |
| Výška venkovní jednotky (mm): | 1695 |
| Provedení TČ: | MONOBLOK |
| Typ TČ: | vzduch-voda monoblok |
| Výrobce: | Junkers |
Hodnocení produktu
Buďte první, kdo napíše příspěvek k této položce.
Pouze registrovaní uživatelé mohou vkládat hodnocení. Prosím přihlaste se nebo se registrujte.
Diskuze
Buďte první, kdo napíše příspěvek k této položce.

Se značkou Junkers si již více než 120 let spojujeme osvědčené technologie z oblasti vytápění. Hugo Junkers - průkopník v odvětví tepelné techniky byl vždy zdrojem inovací a stanovoval standardy v tepelném průmyslu. Tato odbornost je nyní spojena se silnou a tradiční značkou Bosch, která vyniká svojí kvalitou a inovativní silou. Se značkou Bosch získáte vše z jednoho zdroje: od fascinujících výrobků a technologií pro vytápění a přípravu teplé vody až po energetický management.
Jednoduchost.
Naše výrobky děláme tak intuitivní a jednoduché, jak je to jen možné - abychom našim zákazníkům usnadnili život. Od snadno srozumitelných informací o výrobku až po rychlou instalaci a intuitivní ovládání. Pomocí inteligentního regulátoru EasyControl můžete například snadno a individuálně řídit teplotu v jednotlivých místnostech nezávisle na sobě. Oceníte ho i na cestách, protože EasyControl lze snadno ovládat pomocí aplikace.
Kvalita.
Naše výrobky se vyznačují vysokou kvalitou a fascinujícím designem. Od dokonale zpracovaného povrchového materiálu, přes technické vlastnosti až po velmi tichý provoz – navíc naše přístroje spolehlivě fungují po celá léta.
Úspora a efektivita.
Při vývoji našich výrobků se zaměřujeme na optimalizaci. Výsledkem je, že zařízení Bosch jsou extrémně energeticky efektivní. Zkrátka a jednoduše: Se značkou Bosch můžete ušetřit spoustu energie. To ocení nejen Vaše peněženka, ale také životní prostředí.
