IMMERGAS VICTRIX TERA V2 35 EU plynový kotel 32 kW, průtokový ohřev TV, závěsný
Kód: 106078238107400028


Související produkty
Detailní popis produktu
Immergas VICTRIX TERA V2 35 PLUS EU je nástěnný kondenzační kotel s uzavřenou spalovací komorou o tepelných výkonech 6,1 - 32,0 kW v režimu vytápění a 6,1 - 37,3 kW při ohřevu TUV, pokud je instalován nepřímotopný zásobník TUV. Kotel je určen k vytápění s možností ohřevu TUV v nepřímotopném zásobníku.
Kotel VICTRIX TERA V2 35 PLUS EU je vybaven modulovaným, energeticky úsporným čerpadlem. Po dopojení venkovní sondy (3.014083, volitelné příslušenství) je ekvitermní regulace v základní výbavě kotle.
Ke kotli lze samozřejmě připojit řídicí jednotku CARV2 (v drátovém či v bezdrátovém provedení).
Oba typy modulačních řídicích jednotek umožňují monitorování kotle a regulaci v závislosti na aktuálních klimatických podmínkách. Dále elektronika kotle umožňuje připojení zónových jednotek DIM ErP.
- Třída sezonní energetické účinnosti vytápění - A
- Nerezová spirála kondenzačního výměníku
- Přehledný digitální displej
- Energeticky úsporné modulované čerpadlo
- Elektrické krytí IPX5D
- Možnost připojit nepřímotopný zásobník - trojcestný ventil v základní výbavě
- Regulace okruhu TUV je již v základní výbavě kotle
- Nastavitelný by-pass v základní výbavě
- Ekvitermní regulace v základní výbavě
- Možnost připojit zónové jednotky DIM ErP
- Možnost připojení modulačního termostatu CARV2
- Možnost vzdálené správy kotle přes internet - DOMINUS
- Funkce vysoušení podlahy v základní výbavě
- Třída NOx - 6



Doplňkové parametry
| Kategorie: | IMMERGAS VICTRIX |
|---|---|
| Záruka: | 2 roky |
| Hmotnost: | 30 kg |
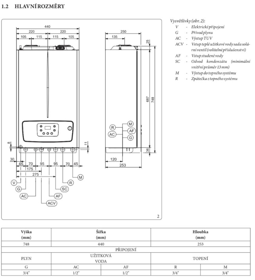
| Šířka kotle (mm): | 440 |
| Výška kotle (mm): | 748 |
| Index krytí: | IP X5D |
| Hloubka kotle (mm): | 253 |
| Použití kotle: | vytápění |
| Instalace kotle: | závěsný |
| Energetická účinnost (%): | 97,7 |
| Energetická třída TUV kotle: | A |
| Hmotnost kotle (kg): | 36,8 |
| Výkon kotle (kW): | 32 |
| Typ kotle: | kondenzační |
| Výrobce: | Immergas |
Hodnocení produktu
Buďte první, kdo napíše příspěvek k této položce.
Pouze registrovaní uživatelé mohou vkládat hodnocení. Prosím přihlaste se nebo se registrujte.
Diskuze
Buďte první, kdo napíše příspěvek k této položce.
Společnost VIPS gas s.r.o. vznikla v roce 1990 spojením odborníků zabývajících se tepelnými zařízeními na plyn a topný olej. Na náš trh v roce 1992 přivedla známou italskou firmu LAMBORGHINI a její výrobní program v oblasti vytápění.
V roce 2005 ke společnosti přistoupila zahraniční finanční skupina IMMERFIN S.p.A, jež je mimo jiné vlastníkem firmy IMMERGAS S.p.A, jednoho z největších výrobců plynových nástěnných kotlů na světě. Toto spojení umožnilo firmě VIPS gas s.r.o. posílení její pozice na českém trhu.

Obchodní a servisní firma VIPS gas s.r.o. vsadila na špičkovou odbornost při nákupu, prodeji a servisu v oblasti vytápění. Informace od výrobců doplněné
o vlastní poznatky a zkušenosti z bohaté praxe předává ve svém špičkově vybaveném školicím středisku obchodním zástupcům, prodejcům, instalatérům, projektantům a servisním technikům.
Zákazníkům tak poskytuje maximum informací při nákupu technicky vyspělých výrobků a technologií. Velkou pozornost přitom věnuje zajištění spolehlivého servisu.
K firemní filosofii patří, že k úspěšnému obchodu s technicky vyspělými výrobky nestačí pouze obchodní talent, ale je nutná také vysoká odbornost
a profesionální přístup. Společnost proto aktivně spolupracuje i při vývoji nových výrobků a pečlivě vybírá ty, které najdou uplatnění na českém trhu.
Kvalita, spolehlivost a důvěra

Značka IMMERGAS se celosvětově řadí mezi nejlepší výrobce plynových kondenzačních kotlů nejvyšší kvality. Klade vysoký důraz na kvalitu produktů, poskytovaných služeb a ochranu životního prostředí. Přináší do vašich domácností teplo a nadstandardní komfort za příznivé ceny. Na kvalitě jednotlivých prvků se podílí použité materiály, z kterých jsou kotle vyrobené, vysoká technologická úroveň výrobního procesu, vícenásobné kontroly kvality
a důkladnost závěrečných výstupních testů, kterými prochází každý kotel. Plynové kondenzační kotle jsou v porovnání s tradičnými kotli ohleduplnejší
k životnímu prostředí a při spalování zemního plynu se do ovzduší dostane jen minimum znečišťujících látek. Plynové kondenzační kotle IMMERGAS splňují nejpřísnější požadavky na ekologii dle předpisů a legislativy EU.

Úspora energie a ekologie
Pokud má Váš kotel odslouženo víc než 15 let, vykazuje známky zastaralosti, nehospodárnosti a snížené účinnosti. Tento stav se velmi výrazně podílí na vysokých nákladech na vytápění a ohřevu TUV. V tomto případě je nejvyšší čas na výměnu starého kotle za nový.
Moderní plynové kondenzační kotle optimálně využívají nejen konvenční teplo vznikající spalováním plynu, ale i teplo spotřebované odpařením vody obsažené ve spalinách (tzv. latentní teplo). V případě tradičních plynových kotlů, toto teplo odchází nevyužité spolu s vysokoteplotními spalinami komínovým systémem. Kondenzační technologie umožňuje využít i teplo vodních par ve spalinách. V porovnání s kotli starších technologií, tak dosahují kondenzační kotle podstatně vyšší účinnosti, čím výrazně snižují náklady na vytápění a také množství škodlivin vypouštěných do ovzduší.

Komfort a pohodlí
Optimálně zvolené příslušenství přináší užívatelům nejen požadované úspory energie a času, ale taktéž nadstandardní komfort a pohodlí. Vhodně zvolený regulátor a venkovní ekvitermní sonda nepřetržitě vyhodnocují situaci a automaticky tak přizpůsobují teplotu vody pro vytápění, čímž zabezpečují požadovanou teplotu vytápěných prostor.
IMMERGAS Vám přináší zvýšený komfort i v podobě aplikace DOMINUS, díky které je možné ovládání kotle na dálku pomocí chytrého telefonu, tabletu, či počítače kdykoliv a odkudkoli. Aplikace umožňuje kotel zapínat a vypínat, zobrazovat aktuální hodnotu prostorové teploty a měnit její nastavení, stejně jako mnoho provozních parametrů. Taktéž lze měnit pracovní režim kotle, či odblokovat případné poruchy.
Např. objekt temperovaný a udržovaný při nízké teplotě lokálním regulátorem, můžeme v dostatečném předstihu nechat vytopit na běžnou komfortní teplotu
a přicházet tak již do příjemně vytopených prostor.

Kvalitní servis a 5letá záruka
Moderní plynové kondenzační kotle, jako vyhrazené technické zařízení, vyžadují odbornou montáž, uvedení do provozu a pravidelné roční servisní prohlídky. Montáž, uvedení do provozu a servisní prohlídky smí provádět pouze oprávněná osoba a povinnost pravidelných kontrol plynových kondenzačních kotlů vyplývá ze zákona. Preventivní prohlídka zabezpečí bezpečné, spolehlivé a úsporné fungování kotle a zároveň včas odhalí případné nedostatky, čímž předejdete závažným poruchám na zařízení, predčasné nefunkčnosti, či škodám na majetku.

Plynové kondenzační kotle IMMERGAS mají prodlouženou 5letou záruku, v případě dodržení všech podmínek záruky, které jsou uvedeny v záručním listě. Jednou z podmínek je každoroční servisní prohlídka kotle, vykonaná oprávněným servisním technikem.
Myslete na budoucnost už dnes. Vyberte si z aktuální nabídky IMMERGAS, ten pravý kotel pro vás.
