BOSCH COMPRESS 6000 AW 13 ORM-T tepelné čerpadlo 5,18kW, 400V, vzduch-voda, venkovní+vnitřní jednotka se zásobníkem
Kód: 7738505143


Detailní popis produktu
Obsahuje:
- Venkovní jednotka CS6000 AW 13
- Vnitřní jednotka se zásobníkem COMPRESS 6000 AWM 13
Technické parametry venkovní jednotky:
- Šířka: 1122 mm
- Hloubka: 545 mm
- Výška: 1695 mm
- Hmotnost: 182 kg
- Chladivo: R410A
- Množství chladiva: 3,3 kg
- Topný výkon A7/W35: 5,18 kW
- COP A7/W35: 5
- Topný výkon A2/W35: 11,71 kW
- Chladící výkon A35/W7: 8,86 kW
- Napájení: 400 V 3N
- Krytí: IP X4
- Akustický výkon: 53 dB
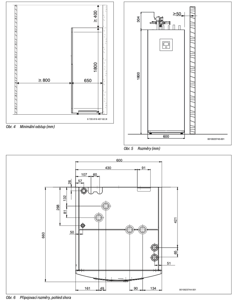
Technické parametry vnitřní jednotky:
- Šířka: 600 mm
- Hloubka: 650 mm
- Výška: 1800 mm
- Hmotnost: 145 kg
- Objem: 190 l
- El. pomocná tyč: 3/6/9/12/15 kW
- Napájení: 400 V 3N
- Jmenovitý průtok: 0,6 l/s
- Krytí: IP X1
- Třída energetické účinnosti: A++
Další informace:
- Invertorové reverzibilní tepelné čerpadlo vzduch/voda kompaktního provedení s vnitřní stacionární hydraulickou jednotkou s integrovaným zásobníkem teplé vody o objemu 190 l a integrovaným regulátorem HPC 410.
- Monoenergetické řešení s integrovaným elektrickým dotopem: 2-9 kW a nerezovým zásobníkem na teplou vodu o objemu 190 l.
- Teplota na výstupu do soustavy max. 62 °C.
- Možnost vytápění i chlazení.
- Použití při teplotě venkovního vzduchu -20 až +35 °C.
- Vysoký topný faktor – COP > 3,7.
- Modul pro dálkové ovládání a sledování systému vytápění přes internet pomocí chytrých zařízení (iOS, Android) jako příslušenství.
- Invertorová technologie umožňuje modulaci výkonu ve 20 krocích dle aktuální potřeby.
- Tepelné čerpadlo lze provozovat v tzv. nočním režimu pro dosažení ještě nižšího hluku.
- Rychlá a jednoduchá instalace.
- Hermeticky uzavřený chladivový okruh již z výrobního závodu – při instalaci není nutná účast chladaře.


Obecný popisek: Otevřete dveře moderního a energeticky efektivního vytápění s tepelným čerpadlem BOSCH COMPRESS 6000 AW 13 ORM-T. Tepelné čerpadlo s výkonem 5,18 kW a technologií vzduch-voda je kompletním řešením pro vytápění vaší domácnosti. Venkovní a vnitřní jednotka spolu s integrovaným zásobníkem teplé vody zajišťují pohodlí a efektivní vytápění.
Popisek k funkčnosti produktu: Tepelné čerpadlo BOSCH COMPRESS 6000 AW 13 ORM-T využívá energii z okolního vzduchu k účinnému vytápění domu. Venkovní jednotka extrahuje teplo ze vzduchu a přenáší ho do vnitřní jednotky, která pak distribuuje teplo po celém interiéru. Integrovaný zásobník teplé vody zajišťuje neustálý přísun teplé vody pro vaše potřeby.
3 výhody produktu:
-
Kompletní řešení pro vytápění a ohřev vody: Díky kombinaci venkovní a vnitřní jednotky s integrovaným zásobníkem teplé vody poskytuje tepelné čerpadlo COMPRESS 6000 AW 13 ORM-T kompletní a pohodlné řešení pro vytápění i ohřev vody v domácnosti.
-
Efektivní vytápění s vysokým výkonem: S výkonem 5,18 kW zajišťuje tepelné čerpadlo dostatečnou sílu pro efektivní vytápění různých typů domů a bytů.
-
Úsporný provoz s minimalizací nákladů: Díky energeticky úspornému provozu a využití obnovitelných zdrojů energie tepelné čerpadlo COMPRESS 6000 AW 13 ORM-T pomáhá snižovat provozní náklady a šetřit životní prostředí.


Doplňkové parametry
| Kategorie: | Tepelná čerpadla BOSCH |
|---|---|
| Záruka: | 2 roky |
| Hmotnost: | 320 kg |
| Výkon TČ A7/W35 (kW): | 5.18 |
| Hmotnost TČ (kg): | 182 |
| Model TČ: | COMPRESS 6000 AW 13 ORM-T |
| Akustický výkon venkovní jednotky (dB): | 53 |
| Typ chladiva: | R410A |
| Šířka vnitřní jednotky (mm): | 600 |
| Hloubka vnitřní jednotky (mm): | 650 |
| Výška vnitřní jednotky (mm): | 1800 |
| Šířka venkovní jednotky (mm): | 1122 |
| Hloubka venkovní jednotky (mm): | 545 |
| Výška venkovní jednotky (mm): | 1695 |
| Provedení TČ: | MONOBLOK |
| Typ TČ: | vzduch-voda monoblok |
| Výrobce: | Bosch |
Hodnocení produktu
Buďte první, kdo napíše příspěvek k této položce.
Pouze registrovaní uživatelé mohou vkládat hodnocení. Prosím přihlaste se nebo se registrujte.
Diskuze
Buďte první, kdo napíše příspěvek k této položce.
V roce 1995 divize Junkers změnila svůj oficiální název na Bosch Termotechnika.
Součást skupiny Bosch
Produkty společnosti Bosch Termotechnika naleznete v současné době po celém světě zastoupené prostřednictvím 7 značek. Především díky prodeji výrobků jako jsou plynové závěsné kotle, kondenzační kotle, solární systémy a tepelná čerpadla jsme lídrem v oblasti vytápění a ohřevu teplé vody.
![]()
